Коттеджный поселок премиум-класса
в 27 километрах от Нижнего Новгорода
«Приозерный-2» - это коттеджный поселок клубного типа на закрытой территории.

Наслаждайтесь загородным отдыхом, не лишаясь всех преимуществ современной жизни.
Приозерный-2
Супермаркет
Хвойный лес
Теннисный корт
ФОК с тренажерным залом
Детская и спортивная зона
На территории поселка расположены:
Информация о поселке
Большое озеро с пляжем
Преимущества поселка
Вы получите готовый дом спроектированный под стандарты современной загородной жизни с проведенными коммуникациями и всем необходимым. Дизайн-проект дома и интерьера формируется под клиента.
На въезде в коттеджный поселок располагается КПП, весь поселок огорожен высоким забором, а на территории установлена система видеонаблюдения.
В шаговой доступности расположен хвойный лес и озеро с песчаным пляжем. На территории комплекса есть ФОК с тренажерным залом и теннисным кортом, супермаркет, детская и спортивная площадка.
Предложение «под ключ»
Закрытая территория
Экология и инфраструктура
План коттеджного поселка
Приобретая участок, вы получаете возможность построить собственный дом по индивидуальному проекту.

Бюджет строительства дома будет зависеть от выбора архитектурного и конструкторского решения.

Также вы можете воспользоваться уже готовыми вариантами проектов.
Стоимость участка
( 10 соток = 1000 кв. метров )
1 200 000 ₽
Галерея
Проекты домов
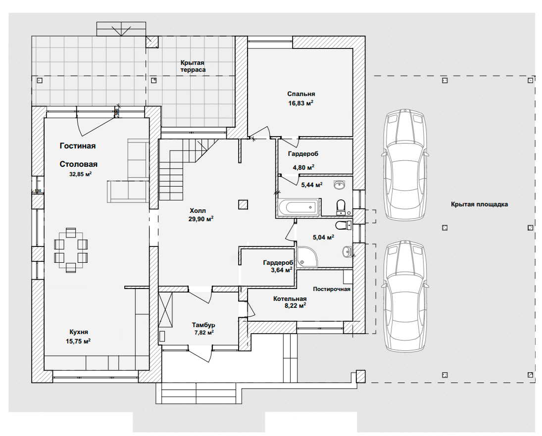
Одноэтажный коттедж площадью 167,21 кв. м. с 3 спальными комнатами, кухней-гостиной, холлом, 2-мя санузлами, 3-мя гардеробными, кладовой

Одноэтажный коттедж площадью 167,21 кв. м. с 3 спальными комнатами, кухней-гостиной, холлом, 2-мя санузлами.
КОТЕДЖНЫЙ ДОМ
КОМФОРТ
Характеристики
Получить проект дома
Общая площадь
Количество комнат
Парковочные места
Стоимость
167 м2
4
2
4 000 000 руб.
1 этаж
Описание
Одноэтажный коттедж площадью 167,21 кв. м. с 3 спальными комнатами, кухней-гостиной, холлом, 2-мя санузлами, 3-мя гардеробными, кладовой

Одноэтажный коттедж площадью 167,21 кв. м. с 3 спальными комнатами, кухней-гостиной, холлом, 2-мя санузлами.
КОТЕДЖНЫЙ ДОМ
КОМФОРТ +
Характеристики
Получить проект дома
Общая площадь
Количество комнат
Парковочные места
Стоимость
167 м2
4
2
4 000 000 руб.
1 этаж
Описание
Узнайте точную стоимость и сроки постройки наших домов «под ключ»
Так же вы получите:
Подробную презентацию об условиях приобретения
Развернутую консультацию и ответы на все вопросы
Наши партнеры
Архитектурно-строительная компания ARDES GROUP помогает своим клиентам создать дом, который станет для них идеальным жилищем, где каждая деталь радует глаз, где обстановка способствует отдыху, а каждый угол отвечает вашим индивидуальным потребностям.

Если вы пока точно не представляете, как он должен выглядеть, можете выбрать один из типовых проектов и подкорректировать его под индивидуальные особенности. Либо с помощью дизайнеров и архитекторов ARDES GROUP создать совершенно уникальный дизайн-проект.

Компания ARDES GROUP подберет любые отделочные материалы проверенного качества из своей обширной коллекции и доставит вам, сэкономив ваше время, энергию и нервы.
Расположение поселка
Месторасположения позволяет добираться до Нижнего Новгорода всего за 30 минут на автомобиле (расстояние до поселка составляет 27 км.).

Чтобы добраться до поселка необходимо, не доезжая 5 км до Богородска, повернуть на ул. Центральную (в сторону деревни Сысоевка) и проехать 3,5 км.
Контакты
Свяжитесь с нами удобным для вас способом, чтобы обсудить ваш вопрос
+ 7 (831) 213-90-30
Телефон:
perevezentsev@altnn.ru
Email:
Нижегородская область,
Богородский район, пос.Приозерный
Адрес:
Заказать обратный звонок:
ООО "Приозерное 2"